Moradia T4
As moradias de tipologia T4, privilegiam os espaços amplos, com destaque para a sala com cozinha e sala de jantar em open space.
01 | Entrada – 5,50 m²
02 | Sala de estar e jantar – 30,75 m²
03 | Kitchenette – 8,60 m²
04 | IS Social 04 – 4,05 m²
05 | Suite 04 – 12,65 m²
06 | Lavandaria 2,05 m²
07 | Despensa – 2,80 m²

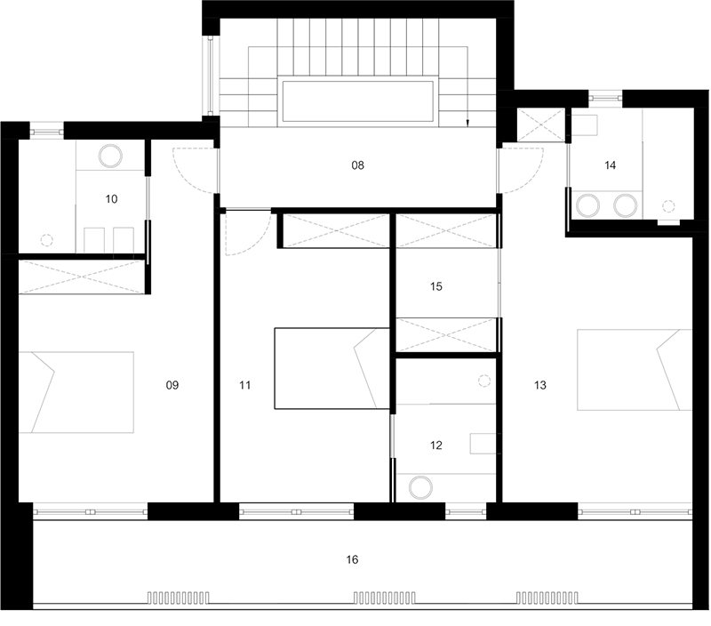
No piso superior, dispõem de três suites, equipadas com roupeiros e instalações sanitárias completas e, a suite principal tem de um closet incluído.
08 | Corredor – 6,70 m²
09 | Suite 01 – 16,55 m²
10 | IS Suite 01 – 4,35 m²
11 | Suite 02 – 14,75 m²
12 | IS Suite 02 – 4,40 m²
13 | Suite 03 – 17,55 m²
14 | IS Suite 03 – 4,15 m²
15 | Closet Suite 03 – 4,20 m²
16 | Varanda – 17,80 m²

4 Suites
4 Casas Banho
170 m2 Área Bruta
Garagem P/ 2 Carros
Categ. Energética A+
1ª Fase Obra | Condomínio

Dimensão de cada lote
A 356 m2
B 317 m2
C 320 m2
D 371 m2
E 464 m2
F 330 m2
G 300 m2
H 300 m2